Based in Amsterdam stud, Hofman Dujardin Architects more "Villa Geldrop", a separate family home in the Netherlands. The residence, which is anchored in the direction perpendicular to the ground with a slope that is leading its site next to existing barn, which together form it imitates. by placing the structure on the axis of the landscape, the camera is able to absorb and reflect the farmland that surrounds it.
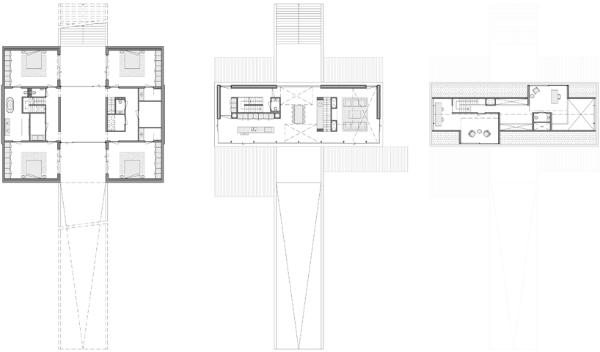
The House of the balances over a linear reduction in the soil that acts as the main entrance and the exit from the residence. a long ramp and flat progressive articulation, leading visitors to the winery. four rooms in a vacuum sealed glass - flanked on one end of the ramp and the other by a series of steps - maintaining open views and allow the main structure to appear as if nothing underneath.
Stairs to the country home for more than a linear cut which is the main entrance and the exit permit. a long gradual ramp on the plains in the joints, which visitors to the basement. 4 bedrooms from an evacuated glass - lined up the other end of the ramp, and other steps - maintain a clear view of the basic structure and make it appear as if nothing less.
Loft on the second floor is less of a gable roof over the kitchen, living room and dining room. A series of cracks through the floor, creates a permeable, which extends the environment in this way. Breaking the barn form two corners of a cube shape extends to the roof line offers space for private offices that are open to the sky.
Stairs to the country home for more than a linear cut which is the main entrance and the exit permit. a long gradual ramp on the plains in the joints, which visitors to the basement. 4 bedrooms from an evacuated glass - lined up the other end of the ramp, and other steps - maintain a clear view of the basic structure and make it appear as if nothing less.
Loft on the second floor is less of a gable roof over the kitchen, living room and dining room. A series of cracks through the floor, creates a permeable, which extends the environment in this way. Breaking the barn form two corners of a cube shape extends to the roof line offers space for private offices that are open to the sky.


















No comments:
Post a Comment